Plot 16 | For Sale
Ideal for Luxury Self Build Home Exclusive Private Gated Community Stunning Woodland Location
Key features
- Exclusive Private Gated Community
- Stunning Woodland Location
- Full Planning Permission Granted
Description
The Cavendish presents an exceptional opportunity to purchase a generous 0.29 acre self-build plot nestled in the secluded luxury of woodland to the north of the exclusive Wynyard Park. The Cavendish is a private, gated community within Wynyard Park, with 24 hr security patrols, CCTV and number plate recognition on entry to the Park.
Wynyard Park is a luxury, exclusive estate that is synonymous with inspirational architecture and aspirational lifestyle.
Set to a backdrop of rolling countryside and secluded woodland, the sprawling community boasts the very best lifestyle, from a Residents’ Garden to recreational facilities for the whole family. Choosing to call Wynyard Park home is about more than the bricks and mortar that make up your property. Living in a completely secure and highly designed environment is a unique way of living that provides unrivalled peace of mind. Wynyard Park is truly a magnificent place to live, with a commitment to remaining a selfsustained and exclusive community.
The plots allow for the development of luxury self build homes up to 2.5 floors.
Click to download our digital brochure
Ground Floor
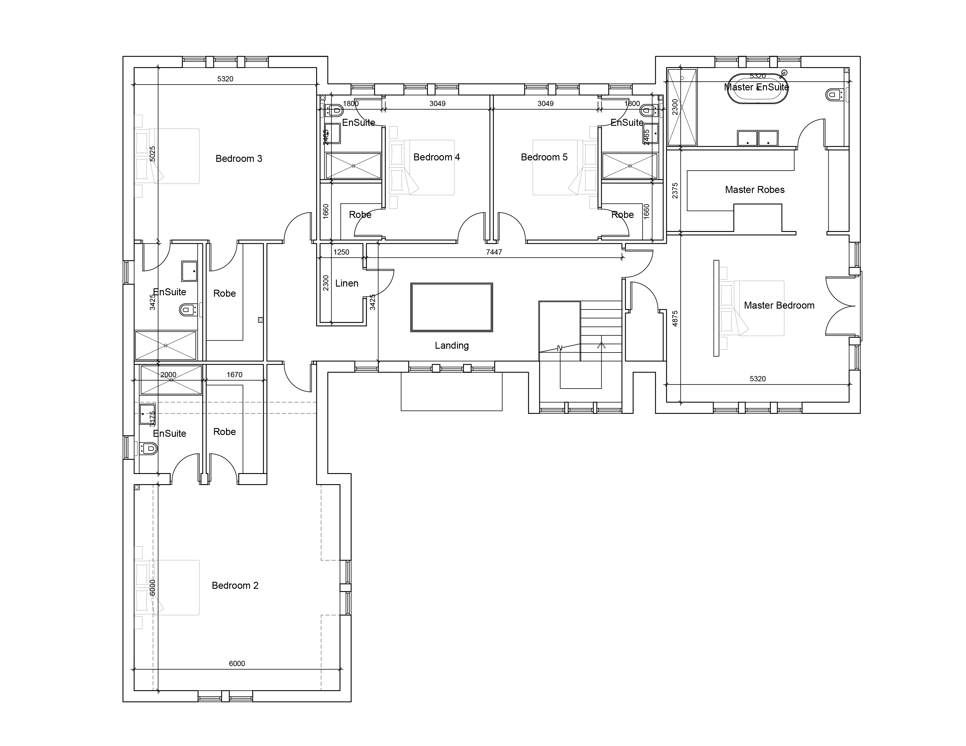
First Floor
